Available from April 2026 Book Now


Amazon Prime Video
Agency: Design Scene
We created a one-of-a-kind immersive experience designed to travel across
multiple NYC locations.
Amazon Prime Video, a content-rich brand with a vast library of distinctive shows, we transformed a shipping container into an unforgettable cinematic journey. Inside, guests stepped into a strikingly detailed train interior that brought the world of Prime Video to life.






From design intent to onsite install. I was able to give timely feedback and manage how the project was constructed.


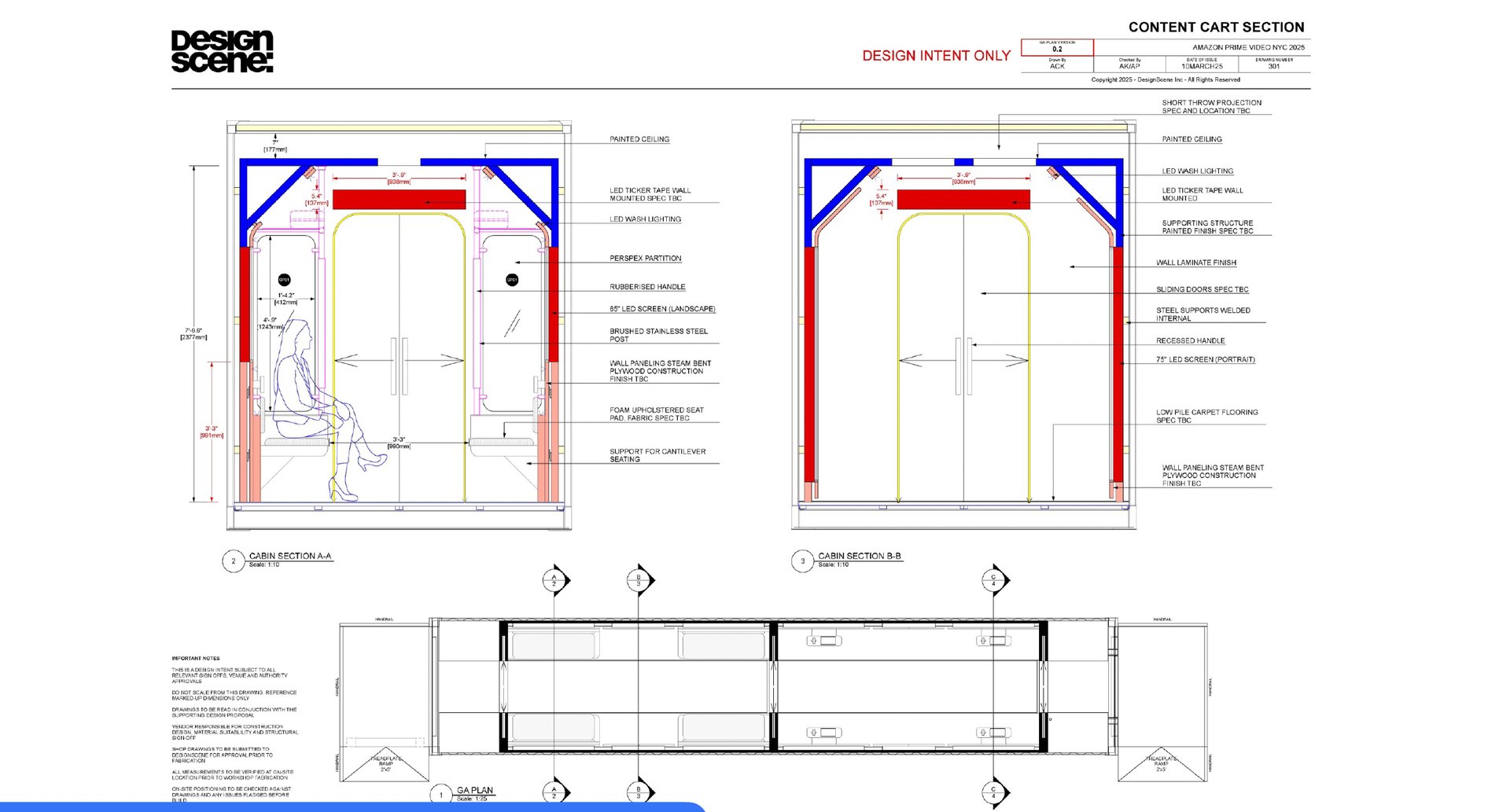
Drawings
I created drawing pack that allowed our contractor to adapt and truly understand the detail we was trying to achieve.
Tools
Vectorworks | Enscape | Illustrator | Photoshop
The Train
Every inch of the container was carefully designed to capture the authentic feel of a train. Angled ceilings, handrails, and bench seating created a true transit environment, while strategically placed LED lighting synced with the on-screen content. As visuals shifted, lights pulsed and seats vibrated, giving visitors the sensation of movement and pulling them deeper into the story.








The experience began before boarding. The bright blue container stood out with a ticket kiosk and gumball machine dispensing custom swag, while brand ambassadors greeted guests, setting the tone for an engaging, immersive journey.




