Available from April 2026 Book Now
Kerb, Berlin
Agency: Stiff + Trevillion
Partnering with KERB, the pioneers behind Seven Dials Market.
Kerb Berlin was their second branded adventure into foodhalls. Their first in Europe. This created a unique opportunity to create something new that still had the same charm as Seven Dials Market.




Based in an old IMAX theatre in Potsdamer Platz. The food hall echoes its past with dark tiling, bold signage and ticket kiosks.
A large void was opened up in the centre of the space, creating an instant connection between both floors.
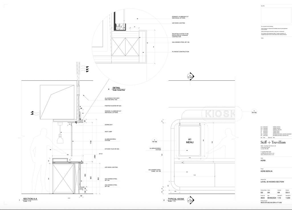
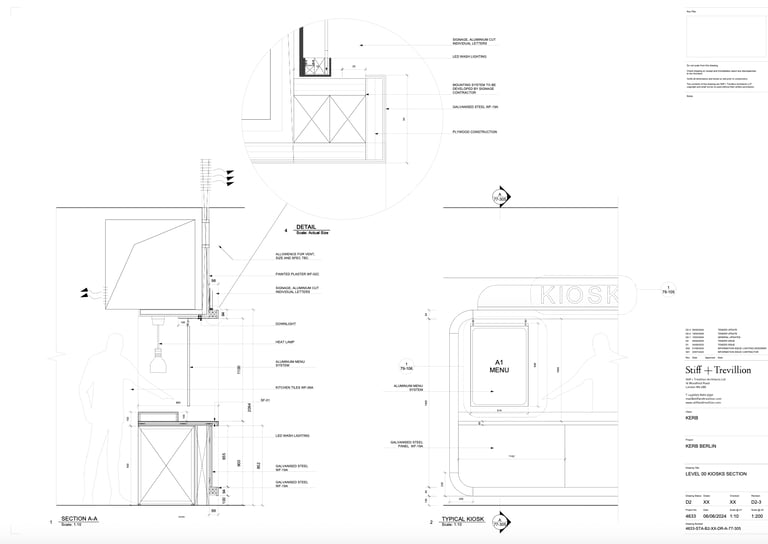
An array of food vendors in tightly packed kiosks greets you on both floors. Using materials such as galvanised steel and zinc created a raw feel to the ground floor. Black gloss tiling and purple stained timber gave the second floor a more premium feel.


Visuals
Full and fast visualisation was need in this project. I created a full 3D model of the entire space with Walkthrough Animations.






Drawings
I worked alongside colleagues at Stiff + Trevillion to create full design intent and detailed drawing packs, leasing with onsite contractors and architects. To ensure the project was delivered to meet our design criteria.




Tools
Vectorworks | Enscape | Illustrator | Photoshop


